A cannon at Manassas National Battlefield Park under a vivid orange-purple sky.

Manassas National Battlefield Park, Va.

Buddy Secor

‘Digital Gateway’ Threatens to Overwhelm Manassas Battlefield

Outrageous proposal would shoehorn largest data center campus on Earth between a National Battlefield and State Forest.

Lawsuits to Overturn Rezoning

On December 13, 2023, Prince William County’s board of supervisors approved plans for the massive Digital Gateway complex, a data center campus in the narrow corridor between the western border of Manassas National Battlefield Park and Conway Robinson State Forest. After a 27-hour meeting that included public comment from hundreds of area residents, the final vote in favor was 4-3, with one abstention.  Click here to see a rendering of what would be the largest data center campus proposal in the world – including its relationship to Trust-protected land!

But we weren’t done fighting. On January 12, the American Battlefield Trust joined nine local residents in filing a lawsuit that asks the Circuit Court for Prince William County to overturn the trio of rezonings granted in violation of Virginia Code by the lame duck County Board of Supervisors. A half-dozen other leading conservation organizations weighed in on the case through a "friend of the court" filing. On October 31, 2024, Judge Tracy Hudson held a hearing on the defendant’s demurrers and ruled in their favor. The American Battlefield Trust and the other plaintiffs remain confident in the merits of our challenge and have exercised their right to appeal the ruling and seek a formal trial.

Meanwhile, a parallel suit brought by the Oak Valley Homeowners Association proceeded separately. On August 7, Circuit Court Judge Kimberly Irving ruled in favor of these plaintiff’s claims a lame duck Board of Supervisors in Prince William County improperly approved the rezoning for the Prince William Digital Gateway. The ruling voided those rezonings as having been approved with insufficient review of the proposed development, given inadequate public notice and included unlawful waivers of key analyses. Unsurprisingly, the County and developers appealed. 

Because of similar aspects at issue in the two cases, the Court of Appeals determined to hold a combined hearing for oral arguments, which took place on February 24, 2026. No verdict was issued from the bench and we eagerly awaited a ruling from the three-member panel of judges. 

That ruling has now arrived. On March 31, the Virginia Court of Appeals rejected the rezonings approving what would have been the world’s largest data center complex alongside Manassas National Battlefield Park. The court upheld a lower court decision finding that Prince William County improperly fast-tracked the approvals without adequately advertising the proposal or making its full text available to the public.

Save Manassas from Massive Data Centers
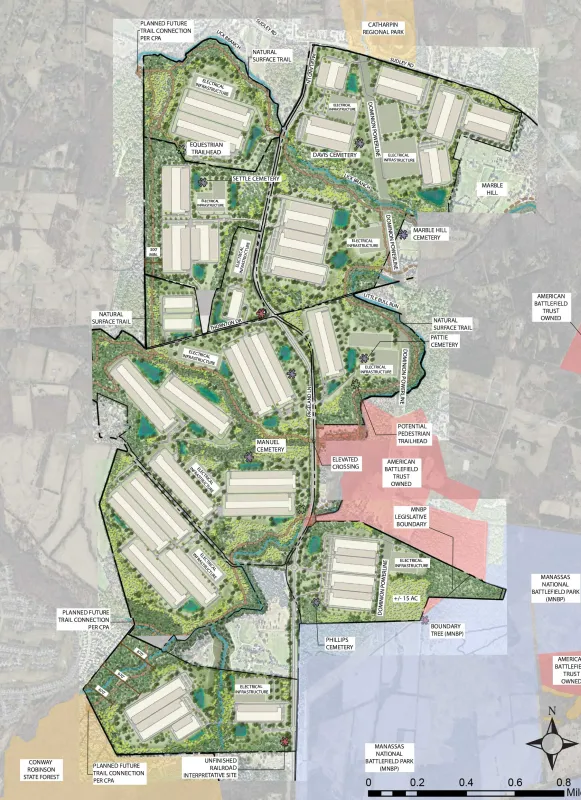
Prince William Digital Gateway Data Center Map
Chinn Ridge at Second Manassas

Global Data Center Capital

Data centers, large industrial complexes function as the backbone of the modern cloud-based internet, are an increasing threat to historic landscapes across Virginia. They require massive quantities of energy and water to function and surrounding communities face significant issues related to their construction and operation. Learn more about the threat posed by data centers on historic landscapes. 

Thanks to a confluence of geography, state legislation and local zoning decisions, Virginia has become the data center capital of the world. Only a few years ago they were concentrated in nearby Loudoun County – but now they are now spreading like locusts throughout Northern Virginia. As of the end of 2024, the Trust is engaged with proposals for data centers on or adjacent to significant Virginia battlefields, including Brandy Station, Deep Bottom, Glendale, Manassas, North Anna, the Wilderness and more. 

The objections that the American Battlefield Trust and our partners have raised are beginning to be heard at the state level. In December 2024, a year long study by the Joint Legislative Audit and Review Commission, called for by the Virginia General Assembly, was concluded. This study found that found that data center growth in Virginia will drive an 183% increase in energy demand by 2040 if not curtailed in some way. However, the study did not sufficiently analyze how impacts to historic lands can me minimized

First Manassas Viriginia Attacks
A historic house and monument on Second Manassas Battlefield
Manassas Battlefield

Prince William Digital Gateway

The scale of the data center monstrosity poised for construction at the edge of Manassas National Battlefield Park is mid-boggling.

Prince William Digital Gateway Data Center Map
 A rendering of what would be the largest data center campus proposal in the world – including its relationship to Trust-protected land! Click here to enlarge.

This area would be covered with up to 34 data center buildings reaching to nearly 100’ in height – a total footprint three times the size of Disneyland and four times the size of the Pentagon. This build-out would require at least 12 substations and consume roughly 3 gigawatts (GW) of energy, equivalent to the power used by 750,000 homes – roughly 5 times the number of households currently in Prince William County! 

Read the call to action from Trust President David Duncan and Manassas Battlefield Trust President Scott Neese published by the Prince William Times on September 7.

The plans before the County are half-baked at best, lacking clarity on final design and making only minimal attempts at viewshed impact analysis. Preservation advocates had to assemble our own comprehensive rendering of the full project because none was otherwise available. Moreover, no accommodation for the extensive power line infrastructure that this project would necessitate has been articulated by the developers. 

Responding to these same failings in the proposal, County Planning staff recommended denial of the applications, citing insufficient documentation and scrutiny. Despite this, the Board of Supervisors voted in favor of it.

A Long, Fraught Fight

Sadly, this is far from the only instance of lack of transparency and due diligence that the county has shown throughout this process. Since it was first unveiled in July 2021, the proposal has been a lightning rod for controversy.  The threat it represents landed Manassas on Preservation Virginia’s annual list of the Commonwealth’s most endangered historic sites in 2022. Opposition from the preservation and conservation community has been constant and consistent, with voices rising from organizations, including the Manassas Battlefield Trust, Journey Through Hallowed Ground, Piedmont Environmental Council, National Trust for Historic Preservation, National Parks Conservation Association, Sierra Club, Coalition for Smarter Growth and the Prince William Conservation Network, as well as the American Battlefield Trust and local landowner organizations.

In December 2023, the Board of Supervisors voted 4-3 in favor of a Comprehensive Plan Amendment after an all-night hearing in which hundreds spoke out against the proposal. This was in clear opposition to public opinion: a May 2023 poll by the National Parks Conservation Association found 86% of Northern Virginia residents, a percentage consistent across party lines, wanted to prohibit data centers within 1 mile of National Parks and historic sites! The same poll hinted that it was going to be a priority at the polls, with 96 percent saying they would support elected officials who take a strong stand protecting these sites from data centers. This was borne out in the 2023 election season, in which many pro-data center candidates lost their seats to newcomers. 

A photograph of trees on the Second Manassas Battlefield
Battlefield of Bull Run or First Manassas Marker

Brawner Farm

Manassas National Battlefield Park was established in 1940 to commemorate the two major Civil War battles – First Battle of Manassas, the first major land battle of the war, and the Second Battle of Bull Run, which paved the way for Lee’s first invasion of the North. The Battlefield was listed on the National Register of Historic Places in 1966. Visitors come to Manassas National Battlefield each year to experience the landscape as it would have appeared during the Civil War while learning more about its history, and to hike or ride on the more than 50 miles of trails in the 5,000-acre national park. 

Prince William Digital Gateway would be located at the western border of Manassas National Battlefield Park, along historic Pageland Lane. This area of the battlefield, including the restored Brawner Farm, played a central role in the Second Battle of Manassas. On August 28, 1862, fighting in this area and the nearby Deep Cut, an unfinished railroad bed, featured some of the most famous units of the entire Civil War – the Union Iron Brigade and the Confederate Stonewall Brigade.